Rüeckringerstrasse
Rothenburg
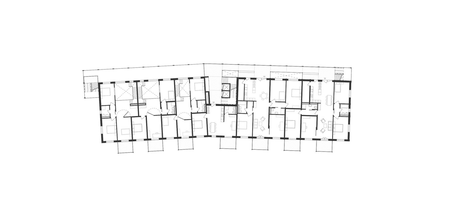
Ein einzelnes längliches Gebäude bezieht sich auf die Rüeckringenstrasse und die westlich liegende Nachbarbebauung und schafft durch einen leichten Knick im Volumen den räumlichen Bezug in die Schützenweidstrasse. So spannt sich zwischen dem im Osten liegenden bachbegleitenden Waldstück und dem Gebäude ein neuer Ort auf, der einerseits den Eintritt ins Quartier markiert, die Adressierung klärt und als gemeinschaftlichen Ort ausformuliert und andererseits die neue Spielwiese als neuen Treffpunkt verortet und mit ins Quartiergefüge einbindet.
Das längliche riegelförmige Gebäude klärt weiterhin den Bezug zwischen öffentlichen, quartiersbezogenen, gemeinschaftlichen und privaten Flächen und formuliert deren Schwellenräume subtil und präzise aus. Im Norden zur Rückringenstrasse orientiert liegen die öffentlichsten Orte mit der Adressierung, dem nachbarschaftlichen Laubengang und einem gemeinschaftlichen Platzbereich. Gegen Süden hin orientieren sich die privateren und den Mietenden zugeordneten Bereichen mit der Balkonschicht und dem gemeinschaftlichen Garten. Die Fläche der Parzelle 925 wird durch präzise Eingriffe und Pflege des heutigen Baumbestandes als kleiner Quartierpark ausformuliert und bietet einen Treff- und Aufenthaltspunkt für die gesamte Quartiersgemeinschaft.
Wettbewerbsbeitrag
Projektwettbewerb im offenen Verfahren
2025
Nutzung: Preisgünstiger Wohnungsbau
Ort: Rothenburg
Auftraggeber: Römisch-katholische Kirchengemeinde Rothenburg
Leistung: Architektur, Freiraum
Arge mit CRAFF Architektur
Haustechnik: Geiger AG
Modellbau: Gruber.Forster


















